11 IDE DENAH PENGEMBANGAN RUMAH MINIMALIS

Table of Contents

Hallo Sobat Sapto di manapun kalian berada, Ketemu lagi di blog saptoarsitek.com yang semoga bermanfaat ini ya....

Pada kesempatan kali ini saya akan melanjutkan berbagi ide pengembangan rumah tipe 36/90 yang merupakan seri lanjutan dari artikel sebelumnya, bagi Sobat Sapto yang belum baca artikel sebelumnya silahkan baca di artikel 10 IDE DESAIN PENGEMBANGAN RUMAH TIPE 36 MINIMALIS UKURAN LAHAN 6X15 M.

Denah Rumah tipe 36/90 sebagai Acuan Awal Pengembangan

Untuk mempermudah dalam memahami denah pengembangan yang akan saya jelaskan maka akan lebih baik jika denah rumah awalnya saya tampilan kembali ya Sob, 

Denah Awal Rumah Tipe 36/90 banyak ditawarkan oleh pengembang dalam brosur mereka, salah satunya adalah perumahan Citra Indah City.

pengembangan rumah minimalis,rumah minimalis










Desain Pengembangan Denah Rumah tipe 36/90

Pada artikel sebelumnya saya bagikan 10 ide pengembangan denah tipe 36/90, dan kali ini akan saya bagikan tambahan 11 ide desain pengembangan rumah tipe 36 dengan ukuran tanah 6x15, semoga semakin banyak alternatif tidak membuat tambah bingung tapi justru menjadikan lebih banyak pilihan untuk diambil yang paling cocok dengan selera pengembangan rumah terbaik bagi rumah kalian.

Baiklah Sob, langsung saja kita cermati 11 alternatif tambahannya sebagai berikut :

1. Alternatif 11.

gambar rumah


Pada alternatif 11, denah pengembangannya sebenarnya mirip dengan alternatif 10, akan tetapi ada perbedaan di bagian belakang.
Perbedaannya ada pada letak dapur, KM/WC, R.keluarga dan R.makan yang di"Mirror".

Pada denah rumah alternatif 10, dapur terlihat langsung ketika tamu masuk di pintu dan ruang makan langsung berdampingan dengan ruang tamu, sedangkan untuk alternatif 11 ini ruang keluarga berdampingan lurus dengan ruang tamu, posisi dapur dan ruang makan lebih privasi. Sobat Sapto tinggal pilih aja lebih suka dan nyaman yang mana...?

2. Alternatif 12.

gambar rumah


Pada pengembangan denah rumah alternatif 12 ini terdapat 3 buah kamar tidur, satu diantaranya memanfaat tanah kosong belakang, kendala pengudaraan alami dan cahaya alami diatasi dengan cara disisakan taman kecil utk membantu aliran udara dan pencahayaan untuk dua kamar tidur belakang. Dapur diletakkan di depan sehingga pembuangan asap dapur lebih mudah dan dapur tersebut juga berfungsi untuk akses darurat jika di ruang tamu sedang ada tamu, oiya di sini ruang tamunya terbuka ya Sob, maklum lahannya terbatas jadi ruang tamu ditempatkan di teras terbuka menyatu dengan taman depan, serasa asri dan sejuk tanpa AC (hemat energi)

Sayangnya pada alternatif 12 ini ngga ada space untuk carport, jadi hanya untuk parkir motor.

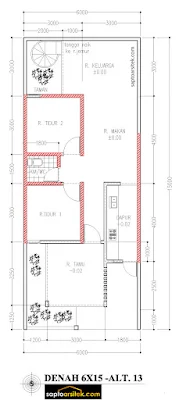
3. Alternatif 13.

gambar rumah


Pada denah rumah alternatif 13, kamar tidur tetap 2, ruang keluarga ditempatkan di area paling belakang dan langsung terhubung dengan taman, untuk ruang cuci/jemur ada di lt.2 tepatnya di atas ruang keluarga.

Posisi dapur pada denah rumah ini berada di area depan sehingga memiliki beberapa keuntungan, antara lain ketika bawa belanjaan untuk keperluan dapur maka bisa langsung by pass ke dapur tanpa melalui ruang tamu atau ruang keluarga, keuntungan lainnya bisa untuk akses darurat penghuni ketika di ruang tamu ada tamu dan merasa sungkan jika harus melewati tamu, selain itu dari jendela dapur, penghuni rumah bisa mengecek/mengontrol ke gerbang rumah jika ada tamu atau lainnya.

Sayangnya pada denah rumah ini tidak tersedia carport untuk mobil, hanya bisa untuk parkir motor saja.

4. Alternatif 14.

gambar rumah


Pada denah pengembangan rumah alternatif 14 posisi dapur pantry berada di tengah dan hanya sekedarnya saja dan ini cocoknya untuk mereka yang tidak memasak di rumah, keberadaan kompor single hanya untuk memanasi makanan dan single sink untuk cuci tangan dan cuci piring yang praktis-praktis saja, sedangkan bagian belakang dimaksimalkan utk ruang keluarga.Terdapat 3 kamar tidur yang salah satunya mengambil area taman depan sehingga terpaksa tidak ada carport dech, hehe...

5. Alternatif 15.


gambar rumah


Pada pengembangan denah rumah alternatif 15, kamar tidur hanya ada 2 tapi rumah ini cukup lengkap dan nyaman karena lebih simple daripada alternatif sebelumnya. Posisi dapur yang terlihat dari pintu depan disiasati dengan desain dapur yang indah dilengkapi meja mini bar sehingga menjadi nilai estetika dari ruangan panjang yang menyatukan ruang keluarga, ruang makan dan dapur pantry. Khusus ruang tamu diletakkan di teras lebar dan terbuka sehingga lebih terasa lapang dan segar dengan AC alaminya, dan yang penting lagi masih tersedia carport sehingga penghuni yang punya mobil tidak lagi parkir di depan rumah yang bisa mengganggu kenyamanan warga lain yang menggunakan jalan. 

6. Alternatif 16.

gambar rumah


Pada pengembangan denah rumah minimalis alternatif 16, keberadaan ruang keluarga cukup nyaman dan privasi. Dikatakan nyaman karena cukup terasa lapang (kamar tidur belakang dan KM/WC yang lama dibongkar), dan juga nyamannya karena ruang ini langsung ada bukaan lebar menghadap taman belakang untuk memaksimalkan pengudaraan alami dan pencahayaan alami. Dikatakan cukup privasi karena keberadaan ruang keluarga yang di belakang dan terlindung oleh ruang-ruang di area depan yaitu 2 ruang tidur dan KM/WC, sedangkan ruang tamu memanfaatkan teras depan yang dibuat cukup luas dengan mengorbankan carport. Tapi sebenarnya Sobat Sapto bisa memilih antara menerima tamu di depan atau dipersilahkan langsung ke ruang keluarga, jika merelakan tamunya dijamu di ruang keluarga maka bisa saja terasnya dibuat dalam ukuran kecil untuk sebagian besar lahannya disediakan untuk carport.

7. Alternatif 17.

gambar rumah


Pada alternatif 17, denah pengembangan rumah dilakukan dengan mempertahankan 2 kamar tidur dan KM/WC yang lama, posisi dapurnya saja yang diletakkan di sudut belakang ruang tidur dan untuk memisahkan dapur dari ruang tidur dibuat taman kecil untuk suplai pencahayaan dan udara alami untuk kamar tidur, taman ini sekaligus sebagai filter udara, untuk menghindari pemandangan yang kurang rapi maka ruang cuci dan jemur diletakkan di dak yang berada di atas dapur. Nilai lebih dari denah rumah ini adalah taman depan dan carport yang tetap luas.

8. Alternatif 18.

gambar rumah


Untuk denah rumah pengembangan alternatif 18 ini menonjolkan ketersediaan ruang usaha untuk penghuni rumah, dalam hal ini bisa untuk toko kelontong atau butik kecil di bagian depan dari rumah minimalis ini yang tentunya bisa untuk menambah penghasilan bagi pemilik rumah. Namun sayangnya ruang keluarga dari denah rumah ini lumayan sempit, kalo boleh menyarankan untuk rumah yang ada tempat usahanya sebaiknya dibuat 2 lantai saja mengingat keterbatasan lahan, supaya kenyamanan rumah juga bisa dinikmati oleh penghuni.

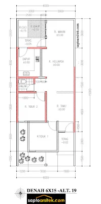
9. Alternatif 19.


gambar rumah


Pada Alternatif 19, denah rumah awal dikembangkan ke depan dan belakang, ke depan dengan penambahan kamar tidur, ke belakang dikembangkan untuk ruang makan, sedangkan kamar tidur belakang dari denah awal dirubah menjadi dapur yang letaknya tersembunyi.

10. Alternatif 20.


gambar rumah


Pada pengembangan denah rumah alternatif 20, kamar depan dari denah awal diperluas je depan, KM/WC lama tetap dipertahankan, kamar tidur belakang dijebol dindingnya utk ruang keluarga yang menyatu dengan ruang makan, jendela ruang keluarga dibuat lebar ke arah taman belakang untuk memaksimalkan pencahayaan dan pengudaraan alami. Daput yang berada di belakang juga dihadapkan langsung dengan taman belakang sehingga pembuangan asap dari dapur juga bisa langsung ke udara bebas dan aktivitas memasak pun menjadi nyaman.

11. Alternatif 21

gambar rumah


Pada pengembangan denah rumah minimalis alternatif 21 ini secara sekilas mirip dengan denah rumah alternatif 15, adapun perbedaannya terletak pada luasan teras. Pada alternatif ini teras tidak dilebarkan sehingga keberadaan taman depan tetap dipertahankan lebih luas, sedangkan ruang tamunya digabung dengan ruang keluarga.


Demikianlah 11 alternatif tambahan desain pengembangan denah rumah tipe 36/90 yang bisa Sapto bagikan sebagai pelengkap dari 10 ide desain pengembangan rumah tipe 36 minimalis ukuran lahan 6x15 m yang pernah saya posting dalam artikel sebelumnya. Buat Sobat Sapto yang sedang mencari inspirasi desain rumah minimalis sederhana silahkan baca artikelnya di sini.


Semoga artikel dalam blog ini senantiasa bermanfaat jangka panjang untuk para pengunjung blog saptoarsitek.com, dan pesan Sapto kepada para pembaca agar selalu berbakti kepada orang tua kalian ya Sob, mumpung masih ada kesempatan.

Salam Sehat dan Sukses ya....

SAPTO arsitek








Posting Komentar