PENGEMBANGAN DENAH RUMAH Type 36/90
Table of Contents
A. Rumah type 36/90
Rumah Type 36/90 adalah rumah dengan jumlah luas ruang-ruangnya adalah 36 m2 dan luas tanahnya 90 m2. Luas tanah 90 m2 bisa berarti ukuran tanahnya 6x15, bisa 9x10, bisa juga 7,5x12, dan yang paling umum adalah ukuran 6x15 m2.
Untuk ide pengembangan denah rumah kali ini acuan denah awalnya saya ambilkan dari desain rumah tipe 36/90 di Perumahan Citra Indah City, tepatnya di Cluster Bukit Ebony yaitu tipe Ebony 3, merupakan tipe rumah murah yang paling laris yang dikembangkan oleh salah satu developer terkemuka di Indonesia.
![]() |
| (Citra Indah) |
Pada umumnya rumah-rumah sederhana type 36 yang dikembangkan oleh developer terdiri dari : R.Keluarga sekaligus R.Tamu, 2 Kamar Tidur, dan 1 KM/WC , dengan persepsi sudah mencukupi untuk keluarga muda dengan 1 anak. dan disediakan lebihan tanah kosong untuk pengembangan di masa datang sesuai kebutuhan.
Rumah type 36 ke bawah disiapkan untuk mereka yang sebagian besarnya adalah kalangan menengah ke bawah atau keluarga baru yang memiliki dana sedang hingga pas-pasan dengan jumlah anggota keluarga yang masih sedikit.
B. Pengembangan Rumah secara Vertikal vs Horizontal
Seiring dengan bertambahnya anggota keluarga dan bertambahnya penghasilan maka tentunya rumah type 36 perlu dikembangkan menyesuaikan dengan kebutuhan dan kemampuan, baik dikembangkan secara horizontal maupun secara vertikal atau ditingkat menjadi 2 lantai atau lebih.
Berikut ini adalah Kelebihan dan Kekurangan Pengembangan rumah minimalis type 36/90 secara horizontal dan Vertikal
B.1. Pengembangan Rumah Minimalis secara Horizontal
Kelebihan :
-Biaya Pengembangan relatif lebih murah
-Aksesibilitas lebih mudah terutama ketika tiba usia senja.
Kekurangan :
-Lahan terbuka hijau untuk taman semakin berkurang bahkan habis
-Karena menghabiskan lahan sampai depan maka otomatis terjadi pelanggaran aturan Garis Sempadan Bangunan (GSB), yaitu batas muka dinding terdepan bangunan yang diizinkan.
B.2. Pengembangan Rumah Minimalis secara Vertikal
Kelebihan :
-Masih tersedia lahan terbuka hijau untuk taman
-Keseimbangan dan keselarasan antara hunian dan vegetasi
-Lebih memungkinkan terwujudnya rumah sehat karena fleksibilitas aliran udara segar
-Bisa dikondisikan tetap mentaati aturan GSB yang berlaku.
-Lebih terasa nyaman dan aman terutama untuk daerah rawan banjir.
Kekurangan :
-Membutuhkan Biaya Pengembangan yang lebih besar untuk upgrade pondasi hingga struktur lantai 2
-Kendala aksesibilitas ketika penghuni sudah usia senja
C. 10 Alternatif Gambar Desain Pengembangan Denah Rumah Minimalis type 36/90 satu lantai
Pada artikel kali ini saya bagikan 10 alternatif gambar denah pengembangan rumah minimalis type 36/90 satu lantai, sedangkan untuk pengembangan secara vertikal akan saya bagikan di artikel yang lain.
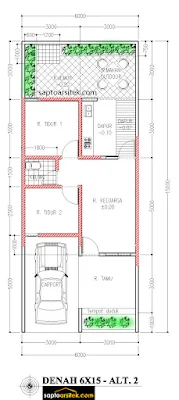
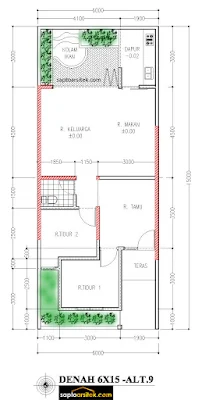
Baiklah langsung saja ya, silahkan dicermati 10 alternatif pengembangan denah rumah tipe 36/90 berikut ini, yang diarsir merah adalah dinding lama/awal yang masih dipertahankan.
Alternatif 1.
Pada alternatif 1, ada penambahan dapur di belakang ruang keluarga, untuk pencahayaan ruang keluarga/r.tamu dimaksimalkan dari jendela depan.
Ruang kosong di belakang dimanfaatkan untuk ruang cuci dan jemur, sekaligus untuk r.makan terbuka yang juga berfungsi untuk bersantai.
Alternatif 2.
Pada alternatif 2 bagian belakang masih sama dengan alternatif 1, yang membedakannya adalah pada alternatif 2 ini ruang tamu disediakan secara terpisah dengan ruang keluarga, yaitu berkonsep semi terbuka, dengan memanfaatkan area samping carport, namun demikian tetap menyisakan bak untuk tanaman agar tetap terasa asri.
Alternatif 3.
![]() |
Pada alternatif 3, ruang makan merupakan perluasan dari r. keluarga arah belakang, dapur dibuat secukupnya, dan sisa ruang kosong dimaksimalkan untuk taman, r.cuci dan jemur. Sedangkan area depan sama dengan alternatif 2.
Alternatif 4.
Alternatif 5.
Pada alternatif 5, area taman depan dimanfaatkan untuk menambah kamar tidur, sedangkan kamar tidur lama yang berada di depan digunakan untuk ruang tamu. Pada alternatif ini area belakang masih sama dengan alternatif 4.
Alternatif 6.
Pada alternatif 6 kamar tidur lama yang belakang dibongkar untuk digunakan sebagai ruang keluarga yang menyatu tanpa sekat dengan ruang makan dan memiliki bukaan lebar ke arah taman belakang sehingga terasa lebih luas dan segar, taman samping carport dibuat kamar tidur dengan tetap menyisakan bak taman di bagian depan kamar.
Alternatif 7.
Pada alternatif 7, secara garis besar masih sama dengan alternatif 6, hanya saja posisi dapur dibalik (di"Mirror") sehingga aktivitas dapur tidak terlihat dari ruang tamu. Taman dan kolam belakang menjadi terlihat dari ruang tamu dan menambah nilai estetika dan kenyamanan.
Alternatif 8.
Pada alternatif 8, kamar tidur belakang dibongkar untuk digunakan sebagai ruang keluarga, KM/WC digeser ke depan dan tentu saja kamar tidur depan juga bergeser ke depan mengambil area carport.
Ruang Tamu dibuat berkonsep terbuka berupa teras, dapur punya akses langsung dari depan sehingga bisa menjadi akses darurat penghuni rumah jika di ruang tamu kebetulan pas ada tamu dan sungkan untuk melewatinya.
Pada alternatif 9, aktivitas berinteraksi antar anggota keluarga dalam rumah ini dipusatkan dalam ruangan keluarga yang cukup luas dan berorientasi ke taman belakang, sayangnya area depan cukup penuh dan tidak bisa untuk parkir mobil.
Alternatif 10.
Pada alternatif 10, area servis (dapur, KM/WC, r.Cuci/Jemur) dipusatkan di area belakang, sehingga area depan masih ada carport dan ruang keluarga juga terasa lapang meskipun secara kenyamanan kurang maksimal dikarenakan bukaan ke arah taman dan taman itu sendiri tidak semaksimal alternatif 6,7, atau 9.
Nah baiklah Sobat Sapto, demikian tadi sekedar sharing dari saya terkait pengembangan rumah di lahan terbatas yaitu 6x15 m2, untuk lanjutan alternatif lainnya bisa dibaca di artikel selanjutnya.
Semoga Sobat Sapto semua senantiasa sehat dan bahagia, dan pesan saya jangan lupa untuk senantiasa berbakti kepada orang tua kalian, semoga menjadi wasilah masuk surga kalian, aamiin.
Salam hangat dan terimakasih...
SAPTO arsitek












Posting Komentar